Euroship Luxe Motor 1500 CL

Euroship Luxe Motor 1500 CL

Het betreft een replica van een steil steven, gebruikmakend van een origineel lijnenplan met aangepaste holte en zeeg om het varen en wonen aan boord optimaal te kunnen benutten.

Traditioneel opgezet ontwerp met grote open kuip, traditioneel ogend stuurhuis al dan niet vast of neerklappend om de doorvaarthoogte te verkleinen.

Gangboord ter plaatse van de schuifdeur in het stuurhuis is dezelfde hoogte als de vloer binnen. De motor bevind zich onder het stuurhuis.

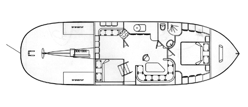
Het laadruim, achterste deel, is voorzien van een roef met daaronder een dubbele bodem, hier kan nog zeer goed naar buiten gekeken worden, in deze ruimte bevinden zich de keuken en een ruime dinette.

Het voorste deel heeft een lagere vloer, hier ligt de vloer direct op de spanten van het vlak, in deze ruimte bevind zich naar keuze een separate douche en toilet en een ruime twee persoons hut.

Het ontwerp kan aan Uw persoonlijke wensen aangepast worden. De lengte is naar keuze, het 15 mtr. ontwerp heeft een breedte van 4.40 mtr.

De diepgang is zonder ballast 0.90 mtr. een grotere diepgang met vast ballast, en een hoger vrijboord is mogelijk. Grote brandstoftanks, watertanks en vuilwater zijn mogelijk, er is ruimte voor totaal ong. 6000 liter.

De hier getoonde indeling is een voorzet en kan aangepast worden, maak Uw eigen indeling en schrijf Uw eigen technische uitvoering en Uw schip wordt op maat uitgevoerd, wij kunnen dit dan als platenpakket of als casco leveren.

Ontdek verder
Afdrukken

Neem contact op voor de

Ik ontvang graag een kopie
Doorsturen Delen Contact

Afmetingen

Lengte o.a.: 15.00 m meter

Breedte o.a.: 4.40 m meter

Diepgang: 0.90 m meter

Doorvaarhoogte: 3 m meter

Waterverplaatsing: Onbekend

Casco

Gehele romp en roefbeplating: 6mm

schotten, kuip, banken: 6mm

gesneden spanten: 6mm

motor fundatie: 8mm

berghout: gesneden plaat 150 * 15 mm

dek en vloerprofiel: T 50 * 50 * 5

Technische uitvoering

Voortstuwing: Naar keuze, een of twee motoren, ongeveer 90 Hp vermogen nodig voor de rompsnelhied van ong. 14 à 15 km/h

Koeling: Kielkoeling, geen buitenboordwater naar binnen, droge uitlaat

Schroefas / schroef: Watergesmeerd met binnenlager 30" Vierblads schroef

Druklager: Aquadrive druklager / koppeling

Roeren: Geprofileerd roer afgesteund op de hak

Stuurmachine: Hydraulisch stuurwerk, tweemaal 90 graden slag

Brandstoftank: 1500 ltr.

Watertank: 1500 ltr.

Vuilwatertank: 1500 ltr.

Prijs

In verband met fluctuerende staalprijzen, stuur een E mail voor de actuele prijzen.

Platenpakket, alle op maat gesneden plaatonderdelen euro 42.500,=

Profielenpakket, alle benodigde profielen, op 6 mtr. lengte euro 5.250,=

Alle platen waar nodig, zetten, buigen en vormen: euro 3.500,=

Casco, platenpakket + profielenpakket gebouwd en afgelast euro 145.500,=

Prijzen excl. btw en af fabriek.

Prijs voor een technisch vaarklaar schip of een compleet schip op aanvraag.

Specificaties van de Euroship Luxe Motor 1500 CL

Algemeen

Doorvaarthoogte normaal
3 m
Diepgang
90 cm
Afdrukken